2020 Versailles 78000
maître d’ouvrage privé
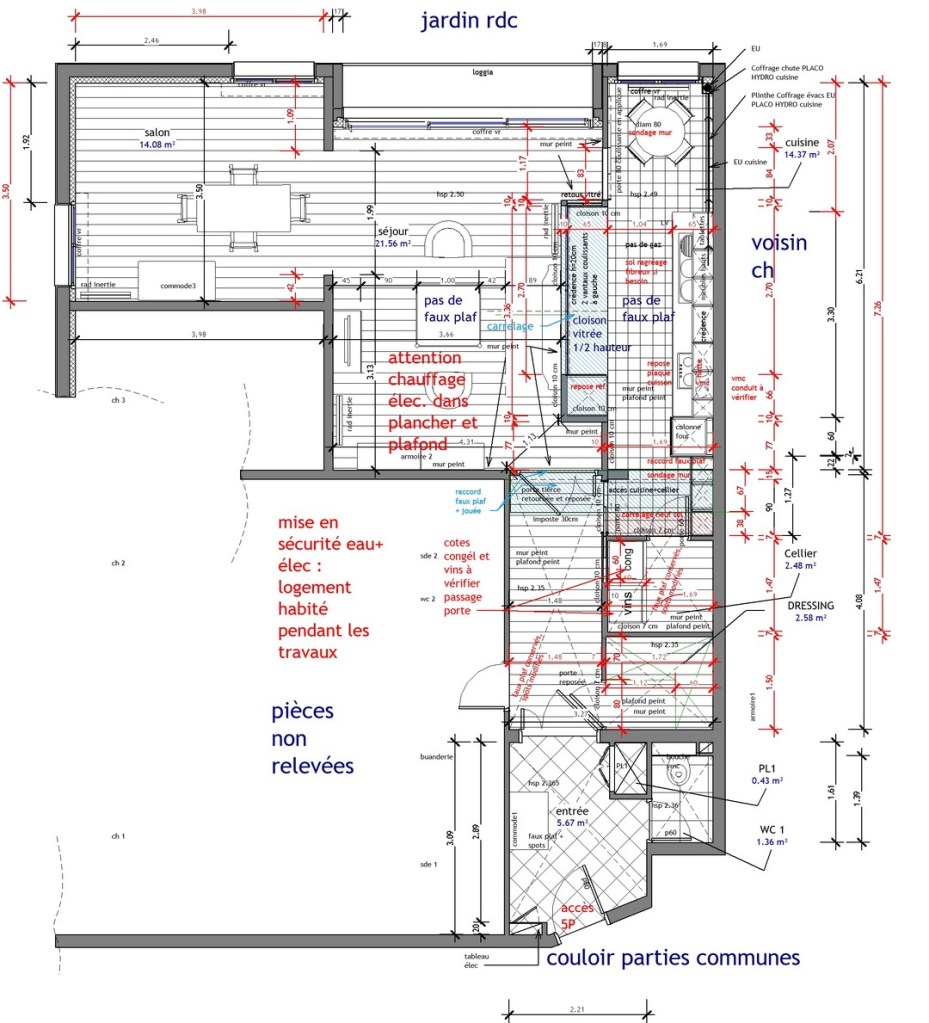
rdc : logement 5 P aménagement partiel -68 m²-
Rééquilibrer un logement de 5 pièces au rdc avec loggia, avec une vue sur un vaste espace boisé, mais une minuscule cuisine « hors échelle ». Ce travail de conception sur la cuisine a été essentiel : quitter ce format de boyau, étroit et linéaire, pour permettre de « se croiser », ramener de la lumière avec une verrière, tout en créant un lien fort avec le séjour et la salle à manger.








