2021-2022 valenton 94460
maître d’ouvrage privé
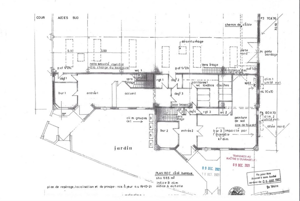
surface totale 1135m² -bâtiment construit en 1988-
surface RDC bureaux et entrepôt 885m²
surface Etage bureaux 250m²
.Incendie du bâtiment voisin en juillet 2021.
Etude, BET structure, expert, choix des entreprises, validations montants travaux expert et assureur.
.Démarrage du chantier en mai 2022
détails travaux partiels : constat des désordres, définition du périmètre de reprise.
.Mise en sécurité.
.Charpente métallique, couverture bacs aciers, chéneaux, descentes EP, remplacement de 14 pannes IPE 100 (pour mémoire : la structure métallique -portique- n’est pas déformée) , isolation, lanterneaux désenfumage, bardage, menuiseries extérieures, réfection des toits terrasse, et clôture.
.Ravalement, doublages, faux plafonds, moquette, peinture.
.Electricité
.Climatisation






















