2020/2021 Saint-Ouen 93400
maître d’ouvrage privé
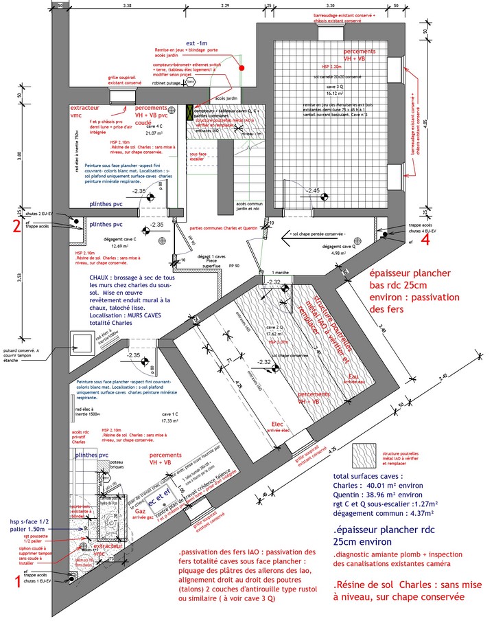
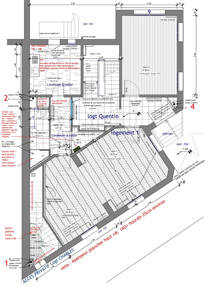
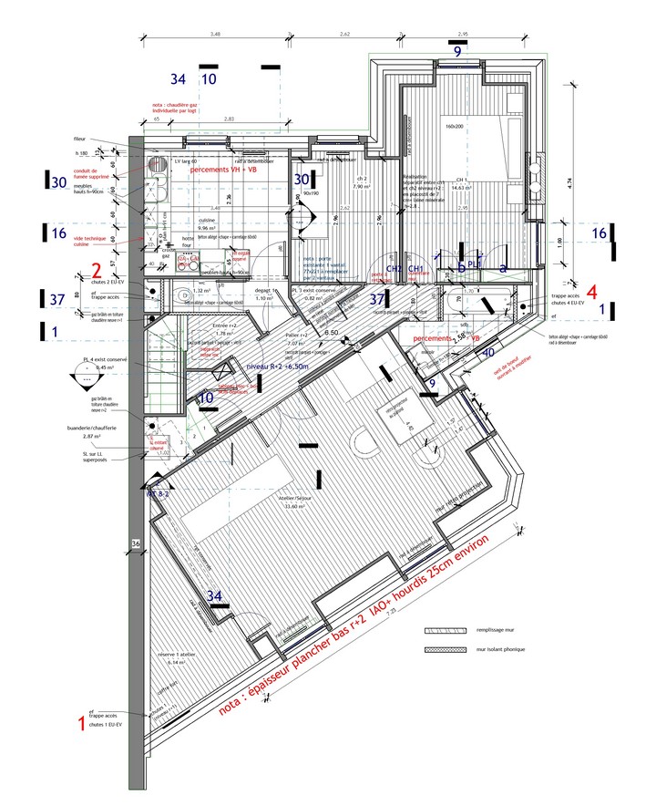
sous-sol, rdc, r+1 et r+2 : 366 m² environ
Maison de famille bourgeoise construite en 1907, surélevée en 1950.
Comment passer d’une famille habitant cette maison et son personnel, à 3 logements, tout en conservant une écriture du siècle dernier et se tournant résolument au XXI -ème.
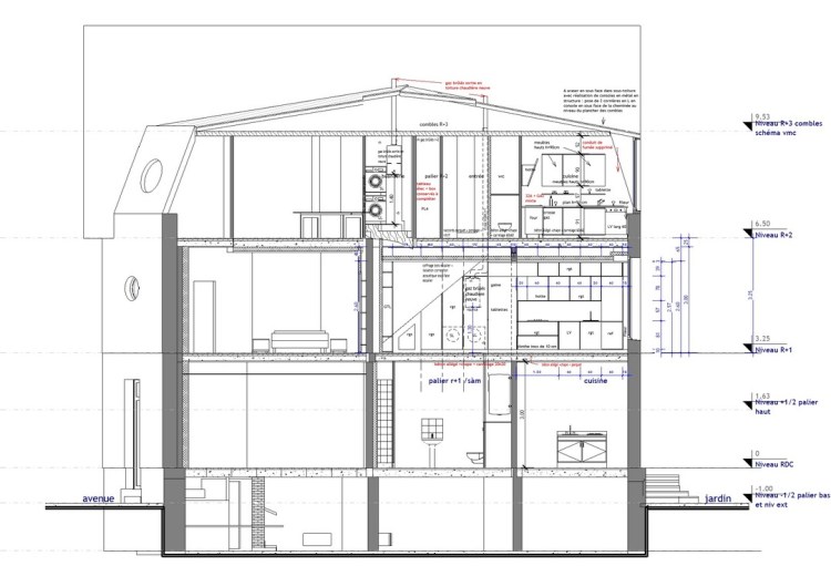
Création d’un « hall d’entrée », depuis le perron, afin de permettre la distribution et l’accès à deux logements et caves. La conservation de l’escalier intérieur monumental permet cette légitime ampleur et cette générosité. Le 3ème se faisant depuis l’avenue directement (l’escalier de service secondaire du personnel, se muant en escalier principal), avec un accès à la cave. Ce besoin de « réenchanter » cette maison, a été indispensable.
Le chauffage collectif au fioul, dans la cave est supprimé : il s’agit de permettre à chacun des 3 logements d’être autonome : par l’accès, par les parties communes , et le chauffage au gaz, devenu individuel. Il a été réalisé une passivation des fers de structure du plancher haut du sous-sol. Les logements des r+1 et r+2 ont été remaniés -ouverture au r+1, dans un mur de refend avec étude de structure par un ingénieur : un usage et des proportions retravaillées afin de s’adapter à la nouvelle décennie.
Cette nouvelle liberté d’usage, par une indépendance, cette juxtaposition des matériaux, des époques, des fonctionnements, des nouvelles envies, a été un souhait fort du maître d’ouvrage et un challenge à relever passionnant.
2022/2023 Saint-Ouen 93400
maître d’ouvrage privé
Phase II : modification du portail. Dossier Déclaration Préalable.
Etudes terminées, mise en œuvre du portail courant mai/juin 2023.




















